東京都豊島区の南池袋二丁目再開発/52階建ビルの商業施設8/4新設
2026年01月30日 10:35 / 店舗
- 関連キーワード
- 大規模小売店舗立地法
- 新店舗オープン
- 東京都
南池袋二丁目C地区市街地再開発組合は2025年12月3日、大規模小売店舗立地法による新設の届出を行った。小売業は未定となっている。
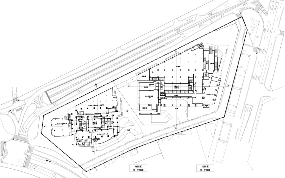
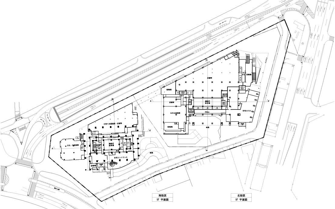
2026年8月4日、東京都豊島区に「南池袋二丁目C地区第一種市街地再開発事業北街区」(店舗面積1194m2)を新設する予定だ。
南池袋二丁目C地区第一種市街地再開発事業の北街区は、地下2階地上52階建て、延床面積11万2190m2の規模で、住宅、店舗、事務所、駐車場を整備する。
■店舗概要
名称:南池袋二丁目C地区第一種市街地再開発事業北街区
所在地:東京都豊島区南池袋2-100
店舗面積:1194m2
駐車場:7台
駐輪場:85台
営業時間:10時~23時
※店舗新設日などの各項目については、大規模小売店舗法の申請時に表記されているもので、実際の店舗オープン日等とは異なる場合があります。
流通ニュースでは小売・流通業界に特化した
B2B専門のニュースを平日毎朝メール配信しています。

