トライアル/福岡県北九州市に「スーパーセンタートライアル小倉熊谷店(店舗面積1997m2)」10/21新設
2026年03月16日 10:31 / 店舗
トライアルカンパニーは2026年2月20日、大規模小売店舗立地法による新設の届出を行った。
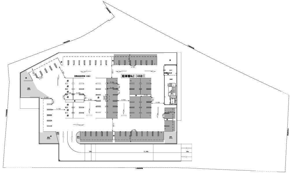
10月21日、福岡県北九州市に「スーパーセンタートライアル小倉熊谷店」(店舗面積1997m2)を新設する予定。
■店舗概要
名称:スーパーセンタートライアル小倉熊谷店
所在地:福岡県北九州市小倉北区熊谷3-1015-1
店舗面積:1997m2
駐車場:85台
駐輪場:28台
営業時間:24時間
※店舗新設日などの各項目については、大規模小売店舗法の申請時に表記されているもので、実際の店舗オープン日等とは異なる場合があります。
流通ニュースでは小売・流通業界に特化した
B2B専門のニュースを平日毎朝メール配信しています。




