大和/鹿児島県薩摩川内市に「だいわ宮内店」来年4/7新設
2025年10月07日 10:10 / 店舗
- 関連キーワード
- 大規模小売店舗立地法
- 新店舗オープン
- 鹿児島県
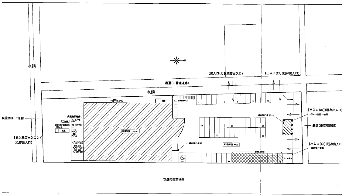
大和は8月6日、大規模小売店舗立地法による新設の届出を行った。
2026年4月7日、鹿児島県薩摩川内市に「だいわ宮内店(仮称)」(店舗面積1,250m2)を新設する予定だ。
■店舗概要
名称:だいわ宮内店(仮称)
所在地:鹿児島県薩摩川内市宮内町2242-1
店舗面積:1,250m2
駐車場:49台
駐輪場:36台
営業時間:9時~21時50分
※店舗新設日などの各項目については、大規模小売店舗法の申請時に表記されているもので、実際の店舗オープン日等とは異なる場合があります。
流通ニュースでは小売・流通業界に特化した
B2B専門のニュースを平日毎朝メール配信しています。
