ケーズHD/神奈川県厚木市に「ケーズデンキ厚木妻田東店(店舗面積3967m2)」8/17新設
2026年02月20日 09:51 / 店舗
- 関連キーワード
- ケーズデンキ
- 大規模小売店舗立地法
- 新店舗オープン
- 神奈川県
ケーズホールディングスは2025年12月16日、大規模小売店舗立地法による新設の届出を行った。
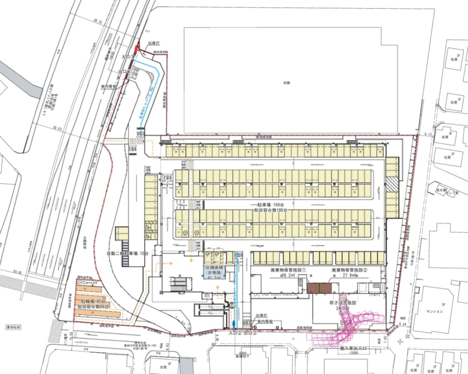
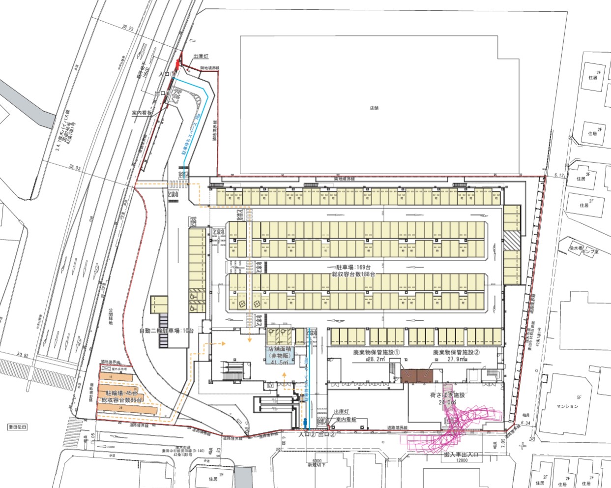
2026年8月17日、神奈川県厚木市に「(仮称)ケーズデンキ厚木妻田東店」(店舗面積3967m2)を新設する予定だ。
■店舗概要
名称:(仮称)ケーズデンキ厚木妻田東店
所在地:神奈川県厚木市妻田東3-1569-1外
店舗面積:3967m2
駐車場:169台
駐輪場:45台
営業時間:9時~21時
※店舗新設日などの各項目については、大規模小売店舗法の申請時に表記されているもので、実際の店舗オープン日等とは異なる場合があります。
流通ニュースでは小売・流通業界に特化した
B2B専門のニュースを平日毎朝メール配信しています。


