コスモス薬品/埼玉・栃木・茨城に「ドラッグコスモス」来年7月新設
2025年12月17日 10:37 / 店舗
コスモス薬品はこのほど、大規模小売店舗立地法による新設の届出を行った。2026年7月に、埼玉県・栃木県・茨城県に新店舗を立ち上げる予定だ。
詳細は以下の通り。
2026年7月1日、埼玉県坂戸市に「ドラッグコスモス坂戸八幡店」(店舗面積1,417m2)を新設する予定。届出年月日は2025年10月30日。
2026年7月15日、栃木県小山市に「ドラッグコスモス粟宮店」(店舗面積1,455m2)を新設する予定。届出年月日は2025年11月14日。
2026年7月18日、茨城県下妻市に「ドラッグコスモス下妻小島店」(店舗面積1,384m2)を新設する予定。届出年月日は2025年11月17日。
■店舗概要
名称:ドラッグコスモス坂戸八幡店
所在地:埼玉県坂戸市八幡1-30-2ほか
店舗面積:1,417m2
駐車場:54台
駐輪場:41台
営業時間:9時~21時50分
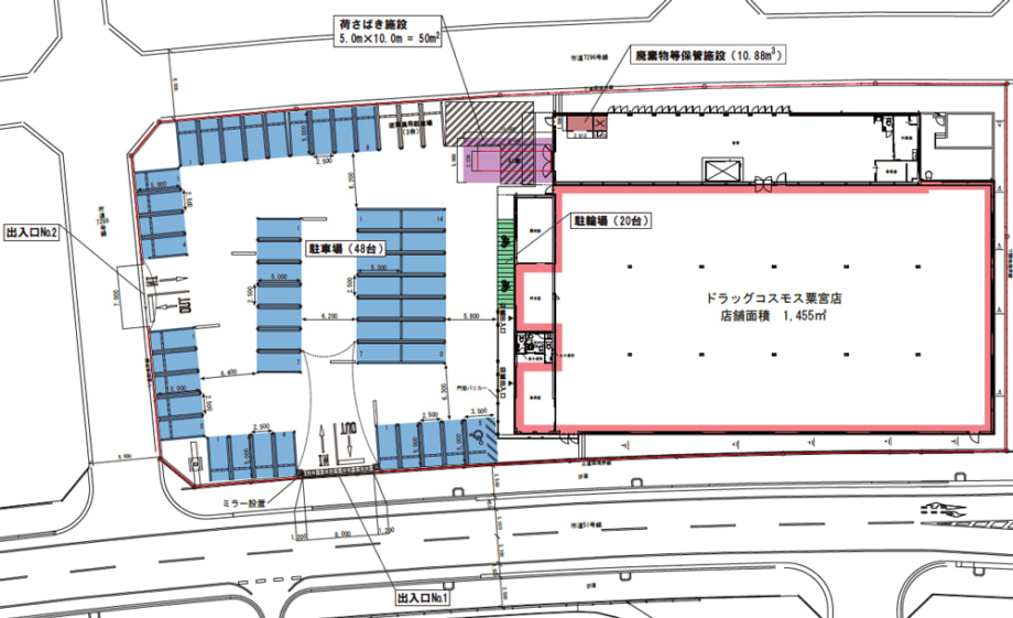
■店舗概要
名称:ドラッグコスモス粟宮店
所在地:栃木県小山市小山栃木都市計画事業粟宮新都心第一土地区画整理事業29街区1、2、3、4
店舗面積:1,455m2
駐車場:48台
駐輪場:20台
営業時間:9時~22時
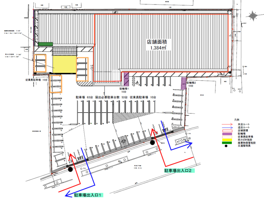
■店舗概要
名称:ドラッグコスモス下妻小島店
所在地:茨城県下妻市小島字前島935-2外
店舗面積:1,384m2
駐車場:53台
駐輪場:20台
営業時間:9時~22時
※店舗新設日などの各項目については、大規模小売店舗法の申請時に表記されているもので、実際の店舗オープン日等とは異なる場合があります。
流通ニュースでは小売・流通業界に特化した
B2B専門のニュースを平日毎朝メール配信しています。

