コスモス薬品/兵庫県に「ドラッグコスモス」計2店舗、8~9月新設
2026年02月27日 10:31 / 店舗
コスモス薬品はこのほど、大規模小売店舗立地法による新設の届出を行った。
8月から9月にかけて、兵庫県に「ドラッグコスモス」2店舗を立ち上げる予定だ。
詳細は以下の通り。
2026年8月23日、兵庫県淡路市に「(仮称)ドラッグコスモス東浦店」(店舗面積1309m2)を新設する予定。届出日は2025年12月22日。
なお、敷地面積は4229m2。
■店舗概要
名称:(仮称)ドラッグコスモス東浦店
所在地:兵庫県淡路市浦字絵堂65-4ほか
店舗面積:1309m2
駐車場:50台
駐輪場:20台
営業時間:9時~21時45分
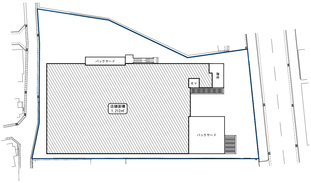
2026年9月6日、兵庫県神戸市に「(仮称)ドラッグコスモス御影店」(店舗面積1244m2)を新設する予定。届出日は2026年1月5日。
なお、敷地面積は2432m2、2階建て。
■店舗概要
名称:(仮称)ドラッグコスモス御影店
所在地:兵庫県神戸市東灘区御影石町1-448-1他
店舗面積:1244m2
駐車場:37台
駐輪場:57台
営業時間:9時~21時50分
※店舗新設日などの各項目については、大規模小売店舗法の申請時に表記されているもので、実際の店舗オープン日等とは異なる場合があります。
流通ニュースでは小売・流通業界に特化した
B2B専門のニュースを平日毎朝メール配信しています。





