クスリのアオキ/静岡県・香川県・茨城県に計3店舗、9月・10月新規オープン
2026年02月26日 10:30 / 店舗
クスリのアオキはこのほど、大規模小売店舗立地法による新設の届出を行った。
9月~10月にかけて、静岡県・香川県・茨城県に「クスリのアオキ」3店舗を立ち上げる予定だ。
詳細は以下の通り。
9月7日、静岡県御前崎市に「クスリのアオキ白羽店」(店舗面積1326m2)を新設する予定。届出日は2026年1月6日。
■店舗概要
名称:クスリのアオキ白羽店
所在地:静岡県御前崎市白羽字原前5164-1ほか
店舗面積:1326m2
駐車場:50台
駐輪場:15台
営業時間:9時~24時
9月15日、香川県高松市に「クスリのアオキ浅野店」(店舗面積1341m2)を新設する予定。届出日は2026年1月14日。
■店舗概要
名称:クスリのアオキ浅野店
所在地:香川県高松市香川町浅野字大塚843-3外
店舗面積:1341m2
駐車場:52台
駐輪場:15台
営業時間:9時~24時
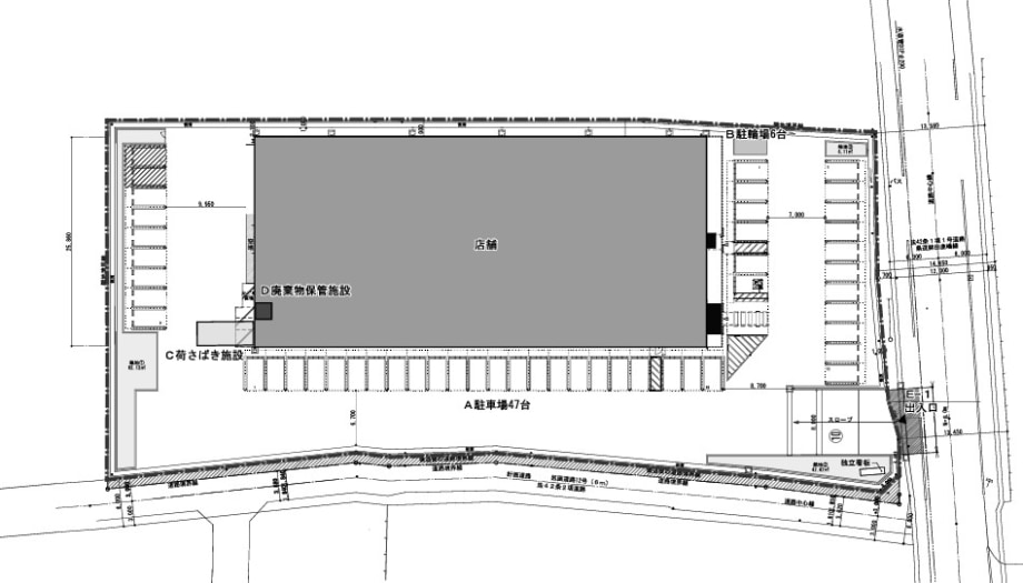
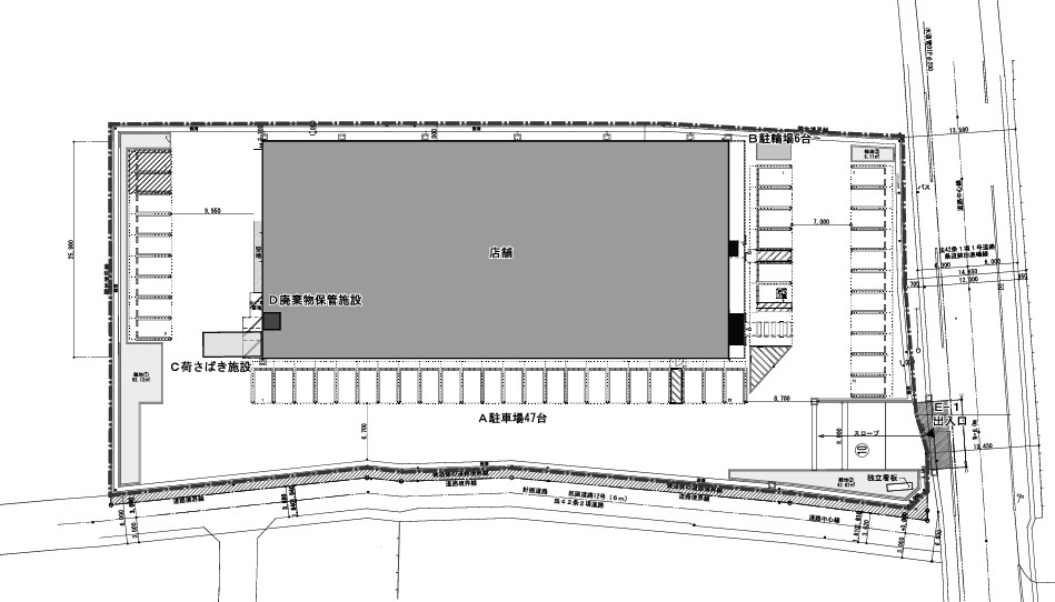
10月1日、茨城県鹿嶋市に「クスリのアオキ鹿嶋大野店」(店舗面積1246m2)を新設する予定。届出日は2026年1月30日。
■店舗概要
名称:クスリのアオキ鹿嶋大野店
所在地:茨城県鹿嶋市大字浜津賀字関場807-1外
店舗面積:1246m2
駐車場:47台
駐輪場:6台
営業時間:9時~22時
※店舗新設日などの各項目については、大規模小売店舗法の申請時に表記されているもので、実際の店舗オープン日等とは異なる場合があります。
流通ニュースでは小売・流通業界に特化した
B2B専門のニュースを平日毎朝メール配信しています。

